|
SERVICES PLANS ORDER CONTACT | |
| PLANS | ||
| PLANS LIST |
THE WHITBY Pre-Approved building plan in the City of Pickering, and the Town of Whitby!
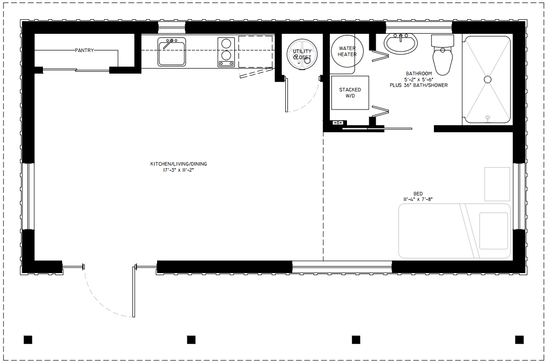
![]() ![]() Many individuals look to Accessory Dwelling Units to lower their cost of living, bring in rental income, or allow aging loved ones to remain independant and close. This model was designed to be simple, versatile, and economical. Although this model may be enjoyed by anyone, it was developed with aging at home in mind. The open floor plan, large bathroom, and oversized tub allow older family members to remain independant and close to their loved ones. The traditional building style fits in with the aesthetics of any neighbourhood, and can be made to stand out, or blend in as desired. The simple structure can be built by local contractors for a quick build, or a handy land owner to save costs. The open layout allows for a variety of furniture configurations, and the large windows allow ample sunlight. The large porch roof overhang shades during the summer, and provides shelter to enjoy the fresh air, even when it's raining.
| |
|
Prescott, Ontario 613-601-9386 adam@jensendesign.ca name, logo, website, and content © Jensen Design Services, 2024 | ||